T (0575) 49 20 80  |  info@svwmakelaars.nl  |  Hoofdstraat 39b, Gorssel

Vrijstaande semi-bungalow in groene villawijk

Inhoud: ca. 585
Woonoppervlakte:
ca. 137

Perceelgrootte: 610 m²

In groene villawijk gelegen KARAKTERVOLLE VRIJSTAANDE SEMI-BUNGALOW (bouwjaar 1964) met grote aangebouwde garage, tuinhuisje en fraai aangelegde tuin rondom. Het is een semi-bungalow, het hele woonprogramma is op de begane grond met o.a. drie (slaap)kamers en een badkamer en als extra op de verdieping een vierde (slaap)kamer en een zolderkamer.

Het is een ruime woning met fraaie detailleringen, zoals de voorgevel met hardhouten betimmering, overstekken met gootklossen, luiken en natuurstenen vloeren in de hal en bij de entree. De woning is in 1999 gemoderniseerd met nieuwe keuken, badkamer, wc en CV-installatie. En het dak is toen geïsoleerd. Het huis is goed onderhouden, maar de afwerking is enigszins gedateerd, er zijn o.a. nog stalen ramen met enkel glas. De ligging is goed, in brede laan, met aan de achterzijde vrij zicht in het groen, dichtbij het gezellige centrum met winkels, restaurants en Museum MORE. 

 
Indeling
Entree onder luifel, hal met Solnhofer natuurstenen vloer, wc en trapopgang. Ruime tuingerichte zitkamer met openslaande tuindeuren en open haard met natuurstenen schouw. Eetkeuken in hoekopstelling met diverse inbouwapparatuur en een provisiekast. Portaal met achterdeur, bijkeuken met wasmachine aansluitingen en doorgang naar de grote garage.
Vanuit de hal toegang tot drie (slaap)kamers met vaste kasten. De hoofdslaapkamer heeft eigen toegang tot de badkamer. Het is een moderne badkamer met douchecabine en wastafelmeubel.
 
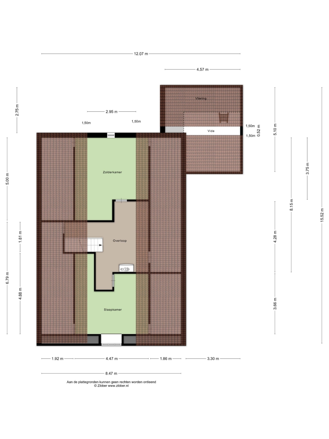
Verdieping
Ruime overloop met CV-opstelling. Slaapkamer aan de voorzijde en een zolderkamer aan de achterzijde. Er zijn meerdere bergingen achter de knieschotten.
 
Garage (ca. 21 m²) en prieel
Lange oprit leidt naar de garage. Het is een grote aangebouwde stenen garage met vliering en achterdeur. De garage is ook binnendoor vanuit de woning bereikbaar. In de achtertuin staat een houten prieel.
 
Tuin
Rondom ligt een fraaie tuin met diverse (groenblijvende) planten en struiken. De achtertuin heeft een groot terras, grasveld en hagen. Het is een mooie besloten tuin met optimale privacy en volledig vrij zicht naar het achtergelegen bosperceel.
  
Details

Inhoud: ca. 585 m³
Woonoppervlakte: ca. 137
Perceelgrootte: 610 m²
Meer details: >> ga naar funda.nl

Ligging

Scroll om in en uit te zoomen.

Douglaslaan 3, Gorssel