T (0575) 49 20 80  |  info@svwmakelaars.nl  |  Hoofdstraat 39b, Gorssel

Royale vrijstaande villa op toplocatie in Gorssel

Inhoud: ca. 1.099
Woonoppervlakte:
ca. 250

Perceelgrootte: 2.430

Op een geweldige locatie gelegen ROYALE VRIJSTAANDE VILLA (bouwjaar 1975) met dubbele carport, bergingen en een weelderige tuin met vijver. Dit is een toplocatie voor Gorssel, midden in de lommerrijke villawijk ’t Amelte, dichtbij het gezellige centrum en grenzend aan het mooie buitengebied. U wandelt zo de bossen in, het beste van twee werelden.
Het is een ruime goed onderhouden woning met een slaap- en badkamer én een werkkamer op de begane grond. Samen met vier slaapkamers en een 2e badkamer op de verdieping is het een comfortabel gezinshuis op een fantastische plek.
 
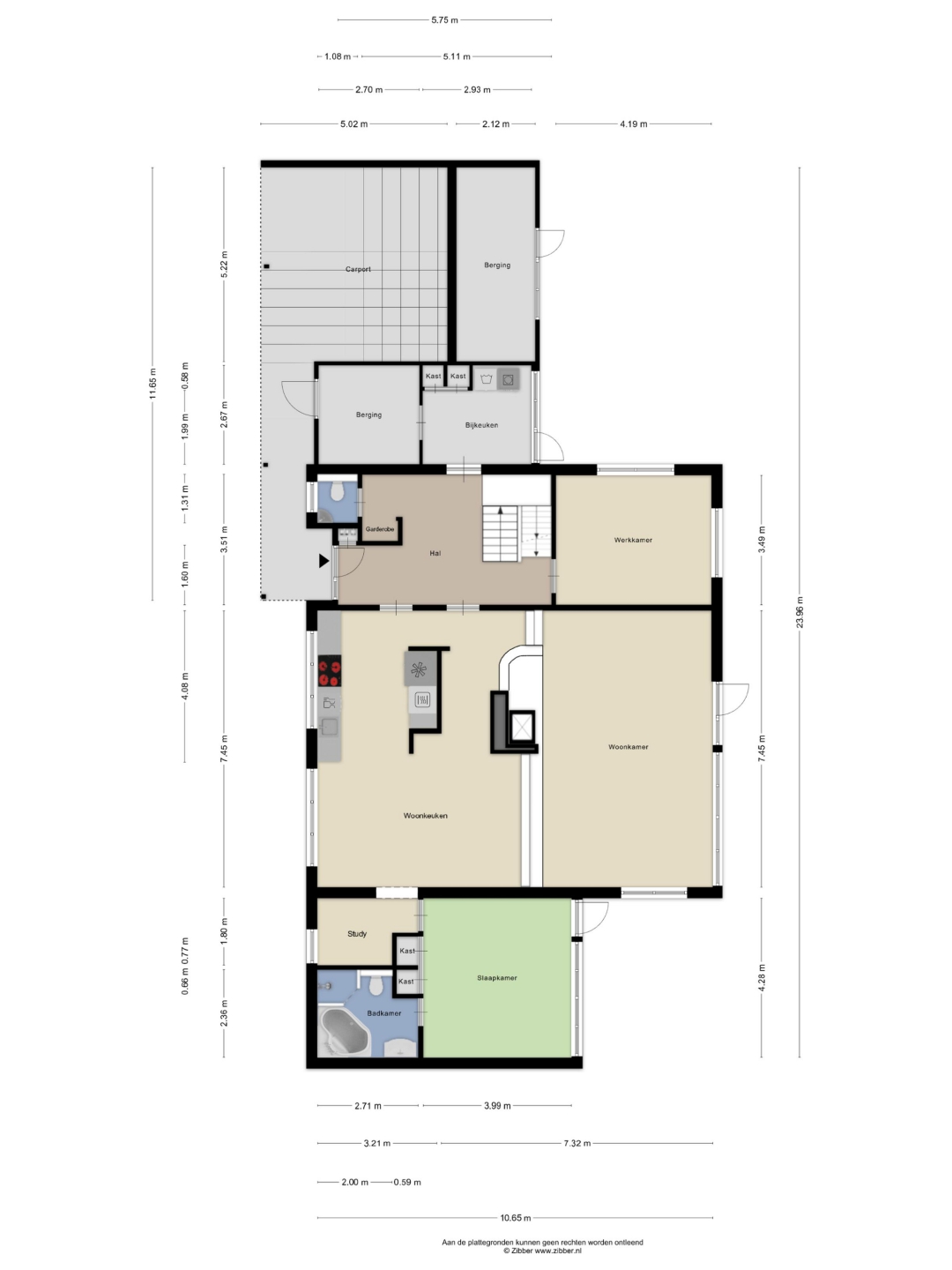
Indeling
Overdekte entree, hal met garderobe, wc en trapopgang. Vanuit de hal ook toegang tot de stahoge kelder (ca. 12 m²), de werkkamer en de bijkeuken met wasmachine aansluitingen, achterdeur en doorgang naar inpandige berging.
Royale tuingerichte splitlevel living met twee treden lager gelegen de zitkamer met open haard met fraaie schouw en tuindeur. Eetkamer met aansluitend de keuken (2019) aan de straatzijde. De moderne keuken heeft een composiet aanrechtblad, inductie kookplaat met afzuiging, oven, magnetron, afwasmachine en een vrijstaande Amerikaanse koelkast. Vanuit de eetkamer doorgang naar de study en slaapkamer met tuindeur en eigen badkamer met ligbad, inloopdouche, wc en wastafelmeubel. 
 
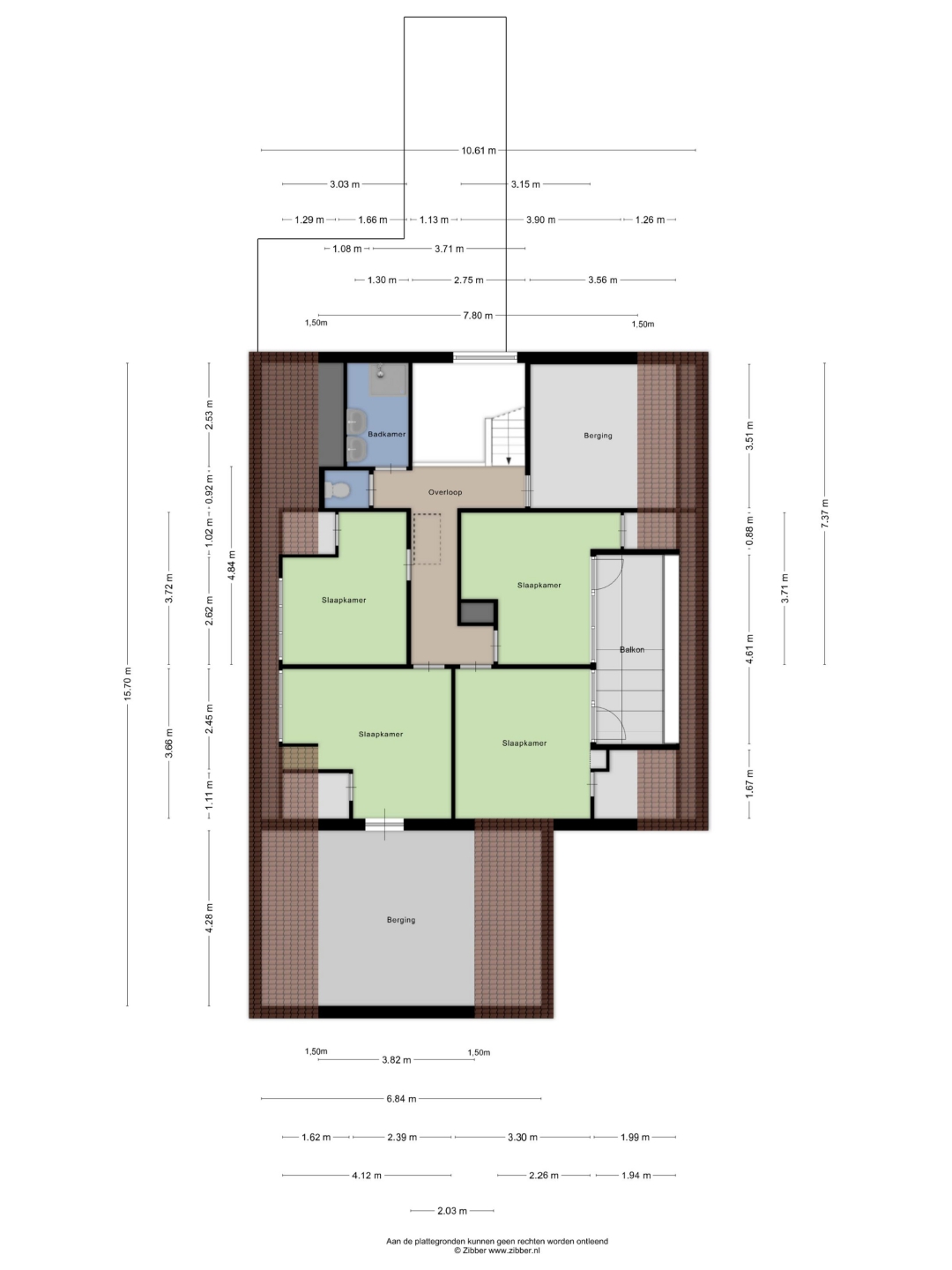
Verdieping
Via bordestrap bereikbare overloop met ruime berging. Slaapkamer met dakkapel aan de voorzijde, slaapkamer met dakkapel en grote berging aan de voorzijde. En twee slaapkamers aan de achterzijde met toegang tot het balkon. Verder een 2e badkamer met inloopdouche en twee wastafels en een separate wc.
 
Zolder
Middels vlizotrap bereikbare bergzolder met CV-opstelling (Remeha Quinta HR 2022).
 
Carport en bergingen
Grote dubbele carport, een inpandige berging en achter de carport is een tuinberging. Verder staat er nog een houten berging in het bos en er is een houtopslag.
 
Tuin en vijver
Rondom de woning ligt een weelderige tuin met grasveld, vijver en een grote variëteit aan planten, struiken en bomen. Het is een heel natuurlijke tuin, met optimale privacy en vrij zicht in het groen. En er zijn meerdere terrassen om van de zon of schaduw te genieten. 
 
Details

Inhoud: ca. 1.099
Woonoppervlakte: ca. 250
Perceelgrootte: 2.430
Meer details: >> ga naar funda.nl

 

Ligging

Scroll om in en uit te zoomen.

Houtvest 5, Gorssel