T (0575) 49 20 80  |  info@svwmakelaars.nl  |  Hoofdstraat 39b, Gorssel

Twee onder één kapwoning op groot perceel met grote garage

Inhoud: ca. 364
Woonoppervlakte:
ca. 85 (exclusief kelder en zolder)

Perceelgrootte: 531 m²

Op een GROOT PERCEEL van maar liefst 531 m² gelegen TWEE ONDER ÉÉN KAPWONING (bouwjaar 1941) met GROTE GARAGE (ca. 29 m²), twee bergingen en een prachtige tuin rondom. Dit is een mooie plek in het centrum van Gorssel, dichtbij de supermarkt en de gezellige Hoofdstraat met winkels, restaurants en Museum MORE. De woning is keurig onderhouden, maar de afwerking is flink gedateerd. Een unieke kans om hier uw eigen fraaie huis en thuis van te maken.
 
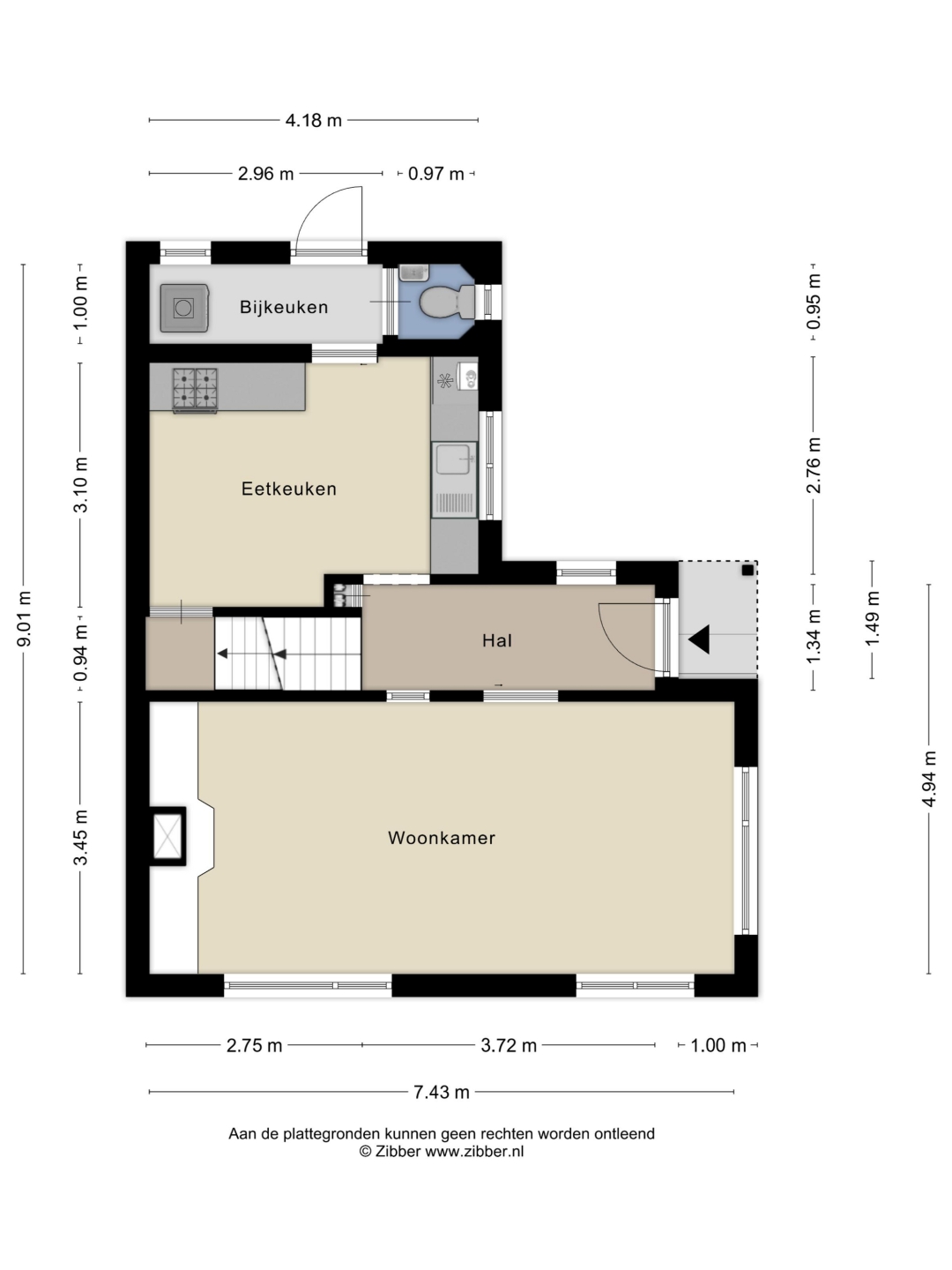
Indeling
Overdekte entree, hal met garderobe en trapopgang. Hoge en lichte woonkamer met eetgedeelte en zitgedeelte met schouw en gashaard. Eetkeuken met diverse inbouwapparatuur, CV-kast en toegang tot de stahoge wijn/provisiekelder. En doorgang naar de bijkeuken met wasmachine aansluitingen, wc en achterdeur.
 
Verdieping
Overloop, slaapkamer aan de voorzijde met twee vaste kasten. Slaapkamer aan de zijkant met vaste kast en dakkapel. En een ruime badkamer aan de achterzijde met ligbad, douchecabine, wc en wastafel meubel. Via luik op de overloop is de zolder bereikbaar.
 
Tuin, bergingen en garage
Voor-, zij- en achtertuin met een lange oprit die naar de garage leidt. De tuin heeft het mooiste grasveld van Gorssel, er is een groot terras en er zijn borders en hagen.
Achter het huis staat een originele stenen berging met vliering en pannendak (ca. 9 m²) met daaraan vast een eenvoudige houten berging.
 
De grote garage (ca. 29 m²) met betonnen vloer en pannendak heeft een garagedeur en een loopdeur, er is een fraaie werkbank en er zijn drie vaste werkkasten. En de garage heeft een verdieping van ca. 12 m². De garage is een ideale klus- en hobbyruimte, maar kan ook worden omgetoverd tot kantoor/praktijk/werkruimte.
 
Details

Inhoud: ca. 364 m³
Woonoppervlakte: ca. 85 m² (exclusief kelder en zolder)
Perceelgrootte: 531 m²
Meer details: >> ga naar funda.nl

Ligging

Scroll om in en uit te zoomen.

Molenweg 25, Gorssel